Schio Magrè - ultima nuova casa a schiera di testa - Classe energetica A4

Descrizione

Ultima opportunità! Nuova casa a schiera di testa sita in zona Magrè - Occasione € 315.000

Trattativa riservata Unica Immobiliare, Zanè Via Prà Bordoni 46, 0445-362244 / info@immobiliareunica.com

In zona residenziale e verde disponibile nuova casa a schiera di testa con giardino privato.
Entrata indipendente, spazioso esterno e taverna; questa proprietà è l'ideale per chi cerca il comfort e la funzionalità di un immobile nuovo.

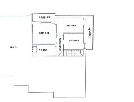
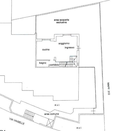
La casa si sviluppa su due piani ed è composta da: luminoso ingresso, zona giorno open space con uscita su terrazza abitabile, bagno di servizio per la zona giorno, scale a vista che portano al piano superiore dove troviamo tre camere da letto, 2 terrazzi e ampio bagno finestrato con box doccia. Al piano interrato troviamo una taverna accogliente, un bagno/lavanderia (con centrale termica) e un garage ampio di 45 mq.
Posto auto di proprietà esterno .
Dotata delle migliori finiture e tecnologie moderne come tapparelle motorizzate, riscaldamento a pavimento in tutti i piani incluso l'interrato, impianto fotovoltaico kwh 3,5 e predisposizione allarme perimetrale. Non lasciarti sfuggire questa occasione!

Rif. EMS131

Camere
3
Bagni
3
Mq
200
2
2
A4
25.47
n/d

Ambienti

Soggiorno angolo cottura
Taverna
Terrazzi 3
Poggioli/balconi 2
Giardino
Posto auto 1
Garage doppio 1
Lavanderia

Livelli & comfort

Livelli Piano interrato , Piano terra , Primo piano
Aria condizionata
Pannelli fotovoltaici
Raffreddamento a pavimento
Riscaldamento autonomo
Riscaldamento a pavimento
Riscaldamento termopompa
Accesso disabili
Animali ammessi
Ingresso indipendente
Numero accessi carrai 1
Numero portoni 1
Porta blindata
Predisposizione allarme
Tapparelle motorizzate

Contattaci